GALLERY
PROPERTY DETAIL
Key Details
Sold Price $284,0003.3%
Property Type Single Family Home
Sub Type Single Family Residence
Listing Status Sold
Purchase Type For Sale
Square Footage 1, 077 sqft
Price per Sqft $263
Subdivision Not In A Subdivision
MLS Listing ID 10096351
Sold Date 06/16/25
Style House, Site Built
Bedrooms 3
Full Baths 1
Half Baths 1
HOA Y/N No
Abv Grd Liv Area 1,077
Year Built 1977
Annual Tax Amount $1,263
Lot Size 1.560 Acres
Acres 1.56
Property Sub-Type Single Family Residence
Source Triangle MLS
Location
State NC
County Johnston
Zoning Residential
Direction From 70 Business East take the Stevens Chapel Exit and turn right at the top of the exit. Turn left on Red House and the house will be on lefft right before you get to Braswell St.
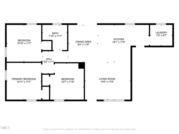
Rooms
Other Rooms • Primary Bedroom: 10.11 x 11.7 (Main)
• Bedroom 2: 10.1 x 11.7 (Main)
• Bedroom 3: 10.7 x 11.5 (Main)
• Dining Room: 9.4 x 11.9 (Main)
• Kitchen: 16.1 x 11.9 (Main)
• Laundry: 7 x 6.7 (Main)Primary Bedroom Level Main
Building
Lot Description Back Yard, Hardwood Trees, Landscaped, Level, Private
Faces From 70 Business East take the Stevens Chapel Exit and turn right at the top of the exit. Turn left on Red House and the house will be on lefft right before you get to Braswell St.
Story 1
Foundation Brick/Mortar, Permanent
Sewer Septic Tank
Water Public
Architectural Style Ranch, Traditional
Level or Stories 1
Structure Type Brick Veneer
New Construction No
Interior
Interior Features Ceiling Fan(s), Eat-in Kitchen, Kitchen Island, Quartz Counters, Recessed Lighting, Smart Light(s), Smart Thermostat
Heating Forced Air, Gas Pack, Propane
Cooling Central Air, Electric
Flooring Vinyl
Appliance Electric Oven, Electric Water Heater, Ice Maker, Microwave, Refrigerator, Stainless Steel Appliance(s)
Laundry Electric Dryer Hookup, Inside, Laundry Room, Sink, Washer Hookup
Exterior
Exterior Feature Fenced Yard, Private Yard, Rain Gutters, Storage
Fence Back Yard, Chain Link
Community Features None
Utilities Available Cable Available, Electricity Connected, Septic Connected, Water Connected, Propane
View Y/N No
View None
Roof Type Shingle
Street Surface Paved
Porch Deck, Front Porch
Garage No
Private Pool No
Schools
Elementary Schools Johnston - Princeton
Middle Schools Johnston - Princeton
High Schools Johnston - Princeton
Others
Senior Community No
Tax ID 04N12021F
Special Listing Condition Standard
SIMILAR HOMES FOR SALE
Check for similar Single Family Homes at price around $284,000 in Smithfield,NC

Active Under Contract
$359,950
15 Lupin DR, Smithfield, NC 27577
Listed by EXP Realty LLC - C3 Beds 3 Baths 2,308 SqFt
Open House
$394,900
125 Tuskeegee DR, Smithfield, NC 27577
Listed by EXP Realty LLC - C3 Beds 3 Baths 2,451 SqFt
Active Under Contract
$379,900
21 Trescott ST, Smithfield, NC 27577
Listed by EXP Realty LLC - C3 Beds 3 Baths 2,451 SqFt
CONTACT









